Как добраться из аэропорта Аэропорт Калининград Храброво в Калининград?
Автомобильная карта Аэропорт Калининград Храброво - Калининград
Аэропорт Калининград Храброво (KGD) — Калининград — расстояние, время, стоимость бензина
| Расстояние | 27 км |
| Время | 34 мин |
| Стоимость бензина | 77 р. |
Расчет стоимости бензина
Моя поездка в Калининград была короткой, но запоминающейся. Расстояние - не помеха для дружбы. Именно с этим девизом я полетела на свадьбу своей подруги.
Время полета составило около 2х часов. Проблем с покупкой билетов не было. Как всегда порадовал разброс цен. Я летала S7. Обратные билеты покупала прямо в аэропорту, так как полетела раньше, чем планировала.
Это был мой первый визит в Калининград, первое знакомство с аэропортом. Сам аэропорт расположен не в черте города, а примерно в 24 километрах в поселении Храброво.
Сейчас аэропорт активно реконструируют, возможно, что к концу работ он будет действительно дотягивать до аэропорта международного класса (ну это то, что я ожидала увидеть).
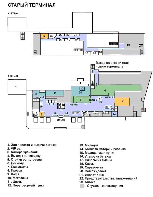
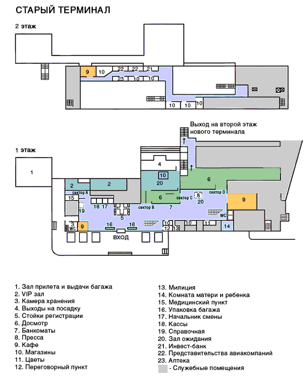
Зона прилета
Надеюсь, что у товарищей реконструкторов руки дойдут до этой важной зоны в первую очередь. Ведь впечатление о городе портится моментально. Это просто тихий ужас. Зона прилета одна для всех рейсов. Какое-то темное помещение без вентиляции, места очень мало. Соответственно - весь багаж выдается в одной точке. Можете себе представить толкотню и суматоху, если сразу прилетят больше 2-х самолетов? Мне повезло, я обошлась только ручной кладью. Мои соседи - пара с ребенком - довольно долго толкались в очереди за багажом. Мне кажется, что аэропорт достоин более человеческой зоны прилета. Ну, или попробуйте не тащить с собой тонны вещей, обходитесь ручной кладью.
Едем в город:
Путь в центр города стандартный: такси, автобус с маршруткой и арендованная машина. Железнодорожное сообщение с городом есть, но до аэропорта электрички не идут.
Взять такси
Как всегда лицензированное такси можно заказать в самом здании аэропорта. Сразу после зоны выдачи багажа нужно двигаться вперед к выходу, слева от двери вас ждут стойки городского такси. Оформляете заказ. Берете талон. Если повезет, машину ждать не придется. Обещают комфорт и безопасность поездки. Именно этим способом я и воспользовалась.
Заказать можно по телефону или у диспетчеров на первом этаже.
• Такси «Кобра» Тел.: +7 (4012) 91-91-91
• Калининградский таксопарк Тел.: +7 (4012) 58-58-58, 058
Таксист сказал, что есть удобный способ заказа машины через интернет, в режиме он-лайн. Перед полетом сразу заказать машинку, чтобы в аэропорту потом не ждать.
Есть и частники, которые встречают вас прямо в аэропорту (некоторые довольно навязчиво), но я немного опасаюсь их.
Стоимость такси
У городского такси фиксированная стоимость поездки в зависимости от конечной точки. С частниками можно и поторговаться - тут уже как договоритесь. За поездку до центра города придется выложить от 500 рублей.
Арендовать машину
Мои знакомые, приехав в Калининград на отдых, арендовали машину и не пожалели. Но для моей короткой поездки это было совсем не актуально.
На сайте аэропорта дана исчерпывающая информация о компаниях, предоставляющих услугу аренды. В самом здании аэропорта на первом этаже я увидела 3 информационные стойки.
Стоимость аренды
У всех фирм свои тарифы на аренду, в целом машина на сутки выйдет около 1200 рублей. Чем дольше аренда, тем ниже цена.
Автобус
Автобусная остановка расположена прямо около выхода из здания аэропорта, на парковке. Маршрутное такси останавливается там же. Примерное время в пути 40-50 минут. Самый экономичный вариант для владельцев скромного багажа.
Автобус 244-Э. Обратите внимание, что автобусы отправляются примерно раз в 40 минут. Расписание на первом этаже на очень приметном стенде около выхода из здания. Автобусы идут через весь город. Б
Телефон справочной службы: 8(4012) 64-36-35, (4012) 64-33-12.
Если вы собираете из Калининграда вылетать международным рейсом, то уточняйте - останавливается ли автобус у дальнего терминала. Вылет международных рейсов осуществляется из второго терминала, но почему - то не все автобусы туда доезжают. Маршруты автобуса 244Э от аэропорта и в аэропорт не совпадают, чтобы точно доехать именно в аэропорт, лучше сесть в автобус на автовокзале.
Ниже расписание автобуса:
http://www.kgd.aero/transport/...
Покупка билета
Проезд оплачивается непосредственно при посадке. Билет приобретается у водителя выбранного вами транспорта. Кстати, за огромный чемодан, который не влезает в салон, придется доплатить, чтобы водитель положил его в багажное отделение.
Стоимость проезда
На момент моей поездки цена билета на автобус была 70 рублей. Доплата за крупный багаж - 20 рублей. Маршрутное такси подороже автобуса, в пределах 100 рублей.
Информация
Обратите внимание, что аэропорт не работает круглосуточно.
Он открыт для пассажиров с 5 до 23 часов. Понятно, что в ночное время самолетов нет и приезжать в аэропорт не надо, но вдруг эта информация будет актуальна для любителей приехать пораньше.
Ну и телефоны аэропорта:
Справки по телефону:
тел. +7 (4012) 610-415, +7 (4012) 610-610
Пограничники:
тел.+7 (4012) 355187
Таможня:
тел. +7 (4012) 355189
Хранение багажа:
тел. +7 (4012) 355108
Безопасность:
тел. +7 (4012) 355107
Магазин DUTY FREE был закрыт (может на реконструкции) по словам жителей города.
Очень надеюсь, работы по реконструкции будут закончены быстро. И аэропорт будет комфортабельным для нас - простых пассажиров.
я нашел ошибку!
