В современных домах на колесах также присутствует экологическая составляющая. Инженеры и дизайнеры стремятся минимизировать воздействие таких передвижных мини-домов на окружающую среду путем внедрения современных технологий. Но создатели проекта «Экокапсула» (Ecocapsule) смогли полностью отказаться от традиционных источников энергии, сделав свой дом на колесах продуктом, действительно заслуживающим приставки «эко».

Создателем этого автодома является компания Nice Architects, штаб-квартира которой расположена в столице Словакии. Дом на колесах не зависит от цивилизации и всю энергию, необходимую для комфортного путешествия, получает из возобновляемых источников. На крыше прицепа расположены солнечные панели мощностью 600 Вт. В дополнение к ним функционирует мини-станция, вырабатывающая энергию за счет работы ветра, мощностью 750 Вт. Обтекаемая сферическая форма экодома на колесах способствует снижению затрат топлива при транспортировке. Кстати, в случае с «Экокапсулой» использование автотранспорта не является единственным способом перемещения. По задумке инженеров из Братиславы, экодом может быть доставлен при помощи воздушного судна, водного транспорта или даже вьючных животных.

Но и это еще не все. В случае, если ваш отпуск проходит не в пустыне, а, скажем, во влажных тропиках или умеренных широтах, вы можете получать питьевую воду во время дождя. Капли, стекающие по округлой поверхности такого дома, собираются в специальные резервуары. В дальнейшем жидкость проходит тщательную очистку и соответствует всем требованиям, предъявляемым к питьевой воде.

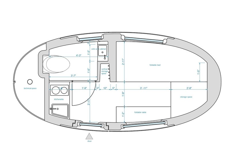
Дизайн внутренней части выполнен в естественных природных оттенках. Здесь есть кухня, спальня, санузел, а также зоны для хранения вещей и продуктов. Ресурсов «Экокапсулы» достаточно для комфортного путешествия или стационарного проживания двух человек.

Интересно, что создатели необычного изобретения не ограничиваются лишь туристическим применением своего дома на колесах. Специалисты компании Nice Architects полагают, что этот передвижной мини-дом можно использовать в качестве автономного жилья для ученых, участников различных гуманитарных акций или профессиональных фотографов, желающих побыть с комфортом вдалеке от цивилизации.

Присоединяйся к нашему сообществу в телеграмме, нас уже более 1 млн человек 😍
Ссылка на тематические чаты тут https://t.me/+69dR1AvDfdM0MTYy