Не зря работу по дому причисляют к самым сложным. Однако одной старушке удалось победить уборку и не заниматься ею несколько десятилетий. А все потому, что она сделала самоочищающийся дом.
Вдохновение от безвыходности
Хозяйку необычного дома звали Фрэнсис Гейб, она жила в орегонском городке Ньюбург. В конце 1920-х годов она училась в политехническом колледже, тогда для юной девушки это было настоящим достижением. Фрэнсис увлекалась физикой, химией и техникой. Заведение она закончила экстерном, а потом вышла замуж, и у нее появились дети.
Как известно, дети не добавляют дому порядка. К тому же Фрэнсис оказалась одной из немногих женщин, кто решил заняться бизнесом: она увлеклась восстановлением разрушенных домов. Увы, муж ее был менее успешен и почти постоянно сидел без работы, перебиваясь небольшими подработками.
По всей видимости, именно тогда у нее закралась идея создать дом, который не нужно будет убирать. В тот сложный период жизни она разрывалась между домом и работой. Но еще сложнее стало, когда Фрэнсис разошлась с мужем. Но именно эта безвыходная ситуация вдохновила ее на действия, и женщина решила превратить свое жилище в самоочищающееся пространство. Мы согласны, что это звучит как фантастика, однако ей все удалось.
Переделка от и до
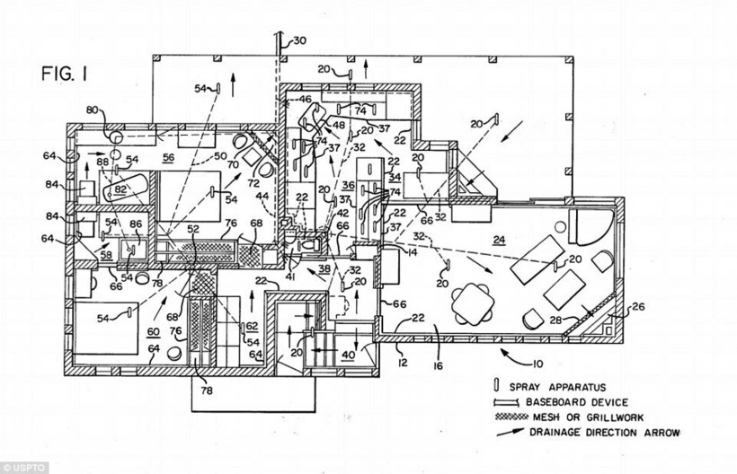
Так что же пришлось сделать, чтобы дом стал самоочищаться? На самом деле поменять все, даже стены. Так, весь дом Фрэнсис перестроила, оснастив их огромными окнами и стенами-сотами с одной из сторон. Домик действительно напоминает чем-то пчелиный улей с огромным количеством окон. Каждое окно в этих бетонных перегородках запаяно органическим стеклом, и часть из них служит своеобразными рамочками: в них стоят приятные для души мелочи. Благодаря такому количеству окон солнечные лучи прекрасно проникают в помещение.
Но стены не единственное, что пришлось переделать. Также Фрэнсис переделала полы: они получились под наклоном. Каждый угол комнаты оснащен стоком, по которому может сбегать вода. Все внутри покрыто специальной смолой, которая отталкивает воду и не позволяет ей впитываться. Вода бежала в пруд рядом с домом, где с радостью купалась собака Фрэнсис.
Дальше ― мебель. Фрэнсис обзавелась мебелью из материалов, которым не страшна влага. Ну а чтобы документы, картины и все бумажные вещи не портились, женщина запечатала их в пластик. Фактически, единственное, от чего пришлось избавиться точно, ― это ковры и шторы.
Как это работает
Но внешняя подготовка ― это только часть переделки. В доме Гейб также установила специальный водопровод, а краны вывела на потолок. В трубы, помимо воды, закачивался и мыльный раствор. Также в комнаты подведены сушильные устройства, которые подают горячий воздух.
В общем, от нее только требовалось одно: надеть непромокаемый плащ, подойти к вентилям и повернуть их. Сначала один, чтобы все как следует в доме промыл напор воды, а затем другой, который активирует сушилку.
Система настолько гениальна и продумана до мелочей, что Гейб больше не убиралась даже в камине: сток был и там, и он попросту вымывал всю золу в канализацию.
Потом все прекрасно просушивалось горячим воздухом — и снова все было готово к разжиганию огня. И даже шкаф для посуды и одежды работал так, что нужно было лишь его включить: сначала запустить воду с мыльным раствором, а затем сушку. Так что фактически Фрэнсис совместила стиральную и сушильную машину с обычным шкафом.
Увы, в 2001 году землетрясение повредило все ее изобретения, и самоочищающийся дом перестал работать. Еще через несколько лет Фрэнсис пришлось переехать в дом престарелых: Гейб не стало в 101 год. Она пережила своего мужа, детей и нескольких внуков. Как думаете, смогла бы она прожить такую долгую жизнь, если бы ей приходилось регулярно проводить уборку в своем доме?
Присоединяйся к нашему сообществу в телеграмме, нас уже более 1 млн человек 😍
Ссылка на тематические чаты тут https://t.me/+69dR1AvDfdM0MTYy

